- SOLARWATT Battery vision et Inverter vision
- Installation
- Battery vision backup booster
Battery vision backup booster
Cette page décrit le montage et l'installation des câbles pour le Battery vision backup booster SOLARWATT.
Observer toutes les Consignes de sécurité et exigences pour l'installateur.
Respecter les Spécifications relatives au lieu d'installation et aux distances maximales et minimales d'installation pour l'onduleur, le compteur, la batterie, le backup booster et la clusterbox.
- Fixation du support mural au mur
- Attachez et fixez le backup booster
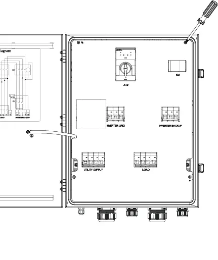
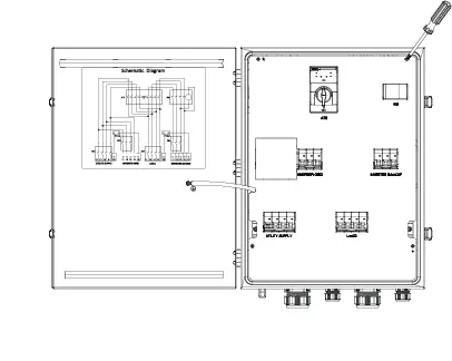
- Ouvrir le couvercle du boîtier, desserrer les vis de la plaque de recouvrement, retirer la plaque de recouvrement
- Établir des connecteurs côté réseau et côté maison (par borne à vis)
- Établir les connecteurs de réseau et de backup à l'onduleur (via une pince à ressort)
- Raccordement de la mise à terre (M5, 2,0 Nm)
- Vérifier que l'appareil est installé de manière sûre et fiable
- Vérifier que le câble de mise à la terre est connecté de manière correcte, sûre et fiable
- Vérifier que tous les câbles sont connectés de manière correcte, sûre et fiable et que l'ordre des phases est correct
- Fermer la plaque de couverture






